Dit hjem. Min passion.

Arkitektur formet efter dig og dit hjem

Jeg hjælper dig fra idé til færdige arkitekttegninger – med fokus på æstetik, funktion og tryghed i hele processen.

Arkitektur & personlig rådgivning

Skræddersyede boligtegninger skabt til dit liv

Vi designer personlige, funktionelle og smukke boligløsninger – fra første idé til færdige arkitekttegninger klar til byggetilladelse.

Som autodidakt arkitekt med solid erfaring fra byggebranchen arbejder jeg målrettet med at udnytte hver eneste mulighed i projektet: grundens potentiale, lysindfald, funktionelle rumforløb og de tekniske krav, der sikrer et stærkt og fremtidssikkert byggeri.

Klar til at komme i gang?

Lad os tage en uforpligtende snak om dine planer

Jeg designer boliger skræddersyet til dine ønsker, så du får et hjem med funktion, æstetik og tryghed i hverdagen.

Jeg guider dig sikkert gennem hele forløbet, så du altid har overblik, ro i maven og fuld forståelse for projektet.

Jeg kombinerer kreativ boligdesign med teknisk viden, så du får arkitekttegninger, der fungerer smukt og praktisk i brug.

Jeg giver tydelig og hurtig kommunikation, så du altid ved, hvor projektet står, og hvad næste skridt bliver sammen.

Hvorfor vælge Danish ARCH?

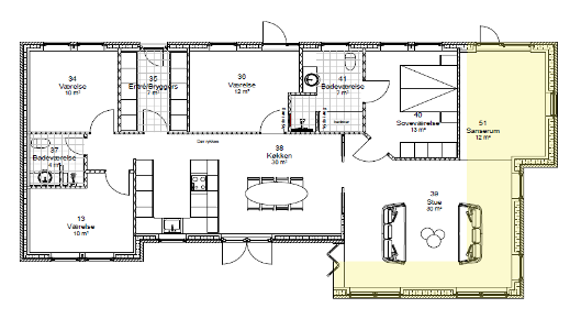
Tag et kig på et udvalg af projekter, hvor funktionalitet, æstetik og kvalitet går hånd i hånd. Hvert hjem er skabt med respekt for kundens ønsker, grundens muligheder og en arkitektonisk tilgang, der gør en forskel i hverdagen.

Mød Amalie Harrig

Som autodidakt arkitekt med 7 års erfaring i husbyggeri designer jeg hjem med omtanke, personlighed og klare linjer.

Min baggrund i branchen gør mig i stand til både at tænke kreativt som en designer og teknisk som en rådgiver – en kombination, der skaber gennemarbejdede og langtidsholdbare løsninger.

Super dygtig med styr på alt.

“Vi fik en super god faglig og hurtig betjening da vi skulle have tilbygget en garage på huset. Alt fra start til slut var en rigtig god oplevelse. Meget dygtig. Vi overgav trygt alt arbejdet med bygge tegninger, byggeansøgninger og alt andet til Danisharch. Alt klappede hele vejen så vi var meget glade. Tak for alt fra start til slut.”

Jemmy Larsen

En professionel og menskelig tilgang…

“En professionel og menskelig tilgang til opgaven. Lovliggørelse af Sommerhus i trygge og kyndige hænder.
Tak Amalie”

Rudolf Bauer

Tegning og byggeproces

“Vi har fået tegnet hus af Amalie, samtidig sørgende hun for byggeansøgning og hele processen til byggeafslutning. Pyha det var vi glade for. Amalie var helt fantastisk til at få vores drøm på en tegning. Hun kom med gode ideer og gode råd til hvordan det ville blive bedst. Vi har fået det mest perfekte hus der passer til os. Vi følte os meget trygge i samarbejdet. Amalie var hurtig og avanceret med både tegninger og de krav kommunen stillede. Vi er super glade for vi fik Amalie med indover”

Mette Larsen

Fantastisk hjælpsom og professionel

“Fantastisk sød og hjælpsom, meget professionel rådgivning! Vil helt sikkert bruge Amalie til mit næste projekt. Vil så meget anbefale virksomheden til en ven!”

Frederikke Warming

Nybyg, ombygning eller renovering – altid tilpasset dig

Uanset om du ønsker et moderne nybyg, en tilbygning der skaber mere plads, eller en renovering der giver dit hjem nyt liv, får du en løsning der:

Jeg arbejder struktureret og gennemsigtigt, så du altid ved, hvor i processen dit projekt befinder sig.

Kvalitet starter i tegneprocessen

Hvor andre ser begrænsninger, ser jeg muligheder. Hvert projekt planlægges grundigt, så tegninger, rumdisponering og dokumentation er præcise nok til at blive brugt direkte af dit byggefirma. Jeg lægger vægt på:

Det giver dig sikkerhed, klarhed og et solidt grundlag for dit byggeprojekt.